- Az eddig bejelentetthez képest négy új épület engedélyeztetését kéri a BYD a szegedi üzeme építkezésén.
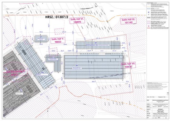
- Az így épülő legnagyobb épület egy 10 hektáros összeszerelő üzem, amely a valaha épült legnagyobb szegedi épület lesz.
- Az üzem méretének növelése tovább növelheti a terület logisztikai infrastuktúrájának túlterhelését.
Bár a villanyautó-eladások mostanában nem mutatnak túl fényes mintákat, úgy tűnik, hogy az importvámok miatt európai gyártásra készülő BYD nem lassul, ugyanis az eddig tervezettnél jóval nagyobb üzem alapozását kezdik meg rövidesen az alföldi városban. Az újonnan építeni kívánt összeszerelő üzem nagyobb lehet bármelyik valaha épült szegedi épületnél. Az eredeti tervekhez képesti változást a Szegeder szúrta ki.
Az eddigi 90 hektárnyi engedélyezett terület látszólag kevés volt a kínaiaknak, így június elején újabb terveket nyújtottak be. A tervek között szerepel egy 500 méter hosszú és 200 méter széles, azaz 10 hektáros összeszerelő üzem, amelynek az alapozási munkálatai hamarosan meg is indulhatnak.

Az újonnan bejelentett épületek között szerepel még egy 435 méter hosszú festőüzem, és egy 370 méteres lökhárítógyártó-üzem is. A Szegeder kiemeli továbbá, hogy a nagyobb üzemkapacitás építése valószínűleg méginkább meg fogja izzasztani a térség logisztikai infrastruktúráját, amely már most is komoly fejlesztésre szorul. A fejlesztési lehetőségeket korábban itt szedtük össze.





![Der neue Mercedes-Benz C 400 4MATIC elektrisch. Energieverbrauch kombiniert: 18,6-14,2 kWh/100 km | CO₂-Emissionen kombiniert: 0 g/km | CO₂-Klasse: A [1] Exterieur: AMG Line; MANUFAKTUR opalithweiß metallic bright [1] Die Angaben sind vorläufig. Es liegen bislang weder bestätigte Werte von einer amtlich anerkannten Prüforganisation noch eine EG-Typgenehmigung noch eine Konformitätsbescheinigung mit amtlichen Werten vor. Abweichungen zwischen den Angaben und den amtlichen Werten sind möglich. //The all-new Mercedes-Benz C 400 4MATIC electric. Energy consumption combined: 18,6-14,2 kWh/100 km | CO₂ emissions combined: 0 g/km | CO₂ class: A [1] Exterior: AMG Line; MANUFAKTUR opalithe white bright [1] The information is provisional. Neither confirmed values from an officially recognised testing organisation nor an EC type approval nor a certificate of conformity with official values are available to date. Deviations between the data and the official values are possible.](/media/images/Original-50543-26c0043-001.format-jpeg.max-370x278.jpg)

